"Al servizio dei deboli... per imparare ad amare"

IL BUON SAMARITANO - ODV 
- Organizzazione di volontariato a favore delle missioni -

Struttura sanitaria per maternità

"LIA SPERANZA"

(Angola)

image002progetti image003progetti
L’Associazione il Buon Samaritano dopo un incontro con P. Walter Maccalli, missionario S.M.A., con cui collabora già da diverso tempo, ha deciso di sostenerlo per il progetto che sta promuovendo, da realizzare in Nambuangongo, in memoria di Lia Speranza, nostra amica di Bitonto che ha sempre sostenuto i missionari che operano in terra d’Africa. Nella circostanza viene riportata la comunicazione inviata da Padre Walter :“Dopo aver consultato l’equipe Pastorale di Nambuangongo, il Vescovo, e la popolazione, siamo giunti a un accordo comune. La costruzione di una Maternità, per una assistenza medica alle molte mamme e future mamme. La “Maternità Lia Speranza” sarà la prima maternità nella regione di Nambuangongo, territorio di circa 5.604 Kilometri quadrati.  Sarà costruita nella Parrocchia in cui opero e sarà sotto la responsabilità di due suore Messicane, che collaborano in parrocchia. La morte di neonati e mamme durante il parto é molto alto. Alcuni giorni fa prima del rientro ho accompagnato una giovane mamma (al primo parto), a un posto medico più vicino, ma purtroppo il neonato che non riusciva a partorire, era già morto da un giorno. Grazie a Dio, questa volta siamo riusciti a salvare la vita della giovane. Per il momento abbiamo ottenuto il terreno, e se tutto va bene alla fine dell’anno inizieremo con le fondamenta. Per il momento abbiamo già ottenuto circa 20.000 Euro.
image002progetti image003progetti

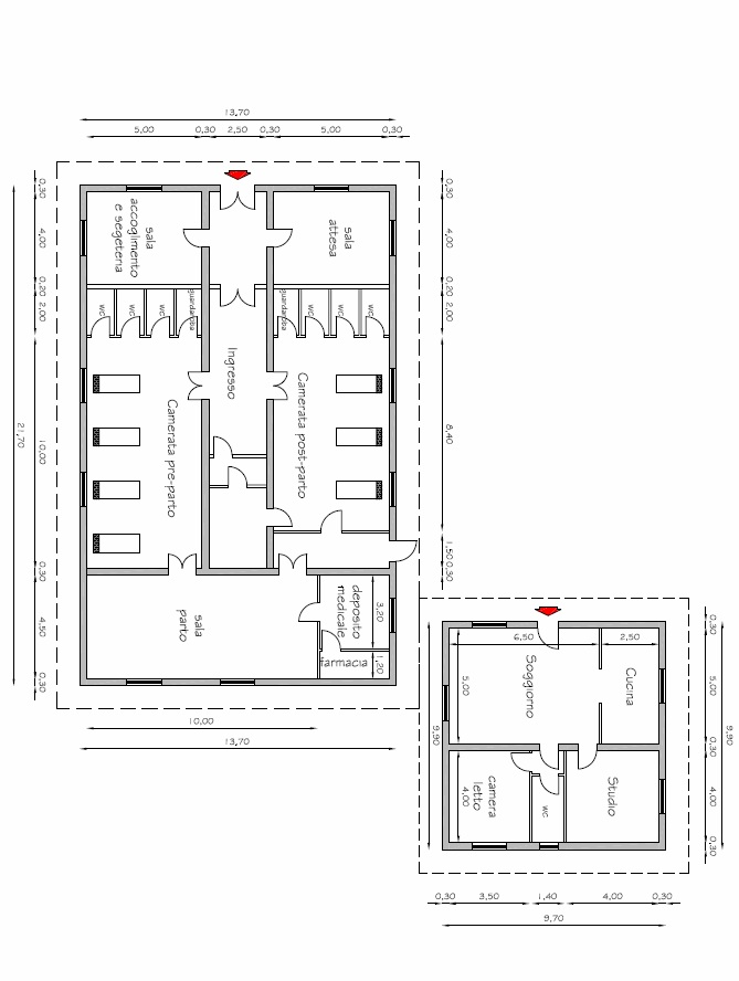
Come si potrà notare dal progetto allegato, la piccola maternità é composta di una sala di attesa, un ambulatorio per visite, una camera di 3 letti per preparazione parto, una sala parto,  una camera dopo parto, una piccola farmacia con deposito medicinali, e accanto, una casetta con due camere soggiorno e cucina per il medico e l’infermiere di stato.

Purtroppo i costi in Angola sono proibitivi per la maggioranza della gente. L’Angola é uno dei paesi piú cari al mondo. La costruzione della maternità é stato estimata a 92.000 Euro. La sua realizzazione sarà divisa in 5 fasi:

  1. Sistemazione del terreno, scavi e fondamenta
  2. Costruzioni delle pareti perimetrali e interne. Due servizi igienici
  3. Realizzazione del tetto
  4. Intonaco e pittura
  5. Rivestimento dei locali e accessori vari per la maternità
Costo stimato circa 92.000 Euro
Allegato tecnico (clicca per ingrandire) image003progetti

I lavori procedono molto lentamente. Solo la nostra piccola associazione garantisce un costante sostegno annuale per il missionario Padre Walter che vive in Angola. Ad oggi la nostra associazione ha inviato 20.000,00 euro, ma siamo ancora distanti al traguardo. Se pur con lentezza, mattone su mattone e tanto lavoro, stiamo riuscendo a realizzare quest'opera che consentirà a molte donne di essere assistite durante il parto. Molte di loro, per mancanza di assistenza sanitaria, muoiono nel dar luce alla vita di un bimbo. Questo paese è stato per circa 30 anni in guerra e porta tutt'oggi le macerie della lunga guerra. Se pur il traguardo è ancora molto lontano Il Signore ci da forza e corraggio affinchè possiamo con amore impegnarci per chi ne ha più bisogno.

Questo pdf è il resoconto dei 4 bonifici che abbiamo trasmesso a Padre Walter e che lui ha voluto rendicontarci.

Questi altri due pdf, invece sono i rendiconti ricevuti da P. Renzo Adorni Missionario S.M.A. per le spese sostenute nell'anno 2016 e 2017.

 

GALLERIA