"Al servizio dei deboli... per imparare ad amare"
IL BUON SAMARITANO - ODV - Organizzazione di volontariato a favore delle missioni -
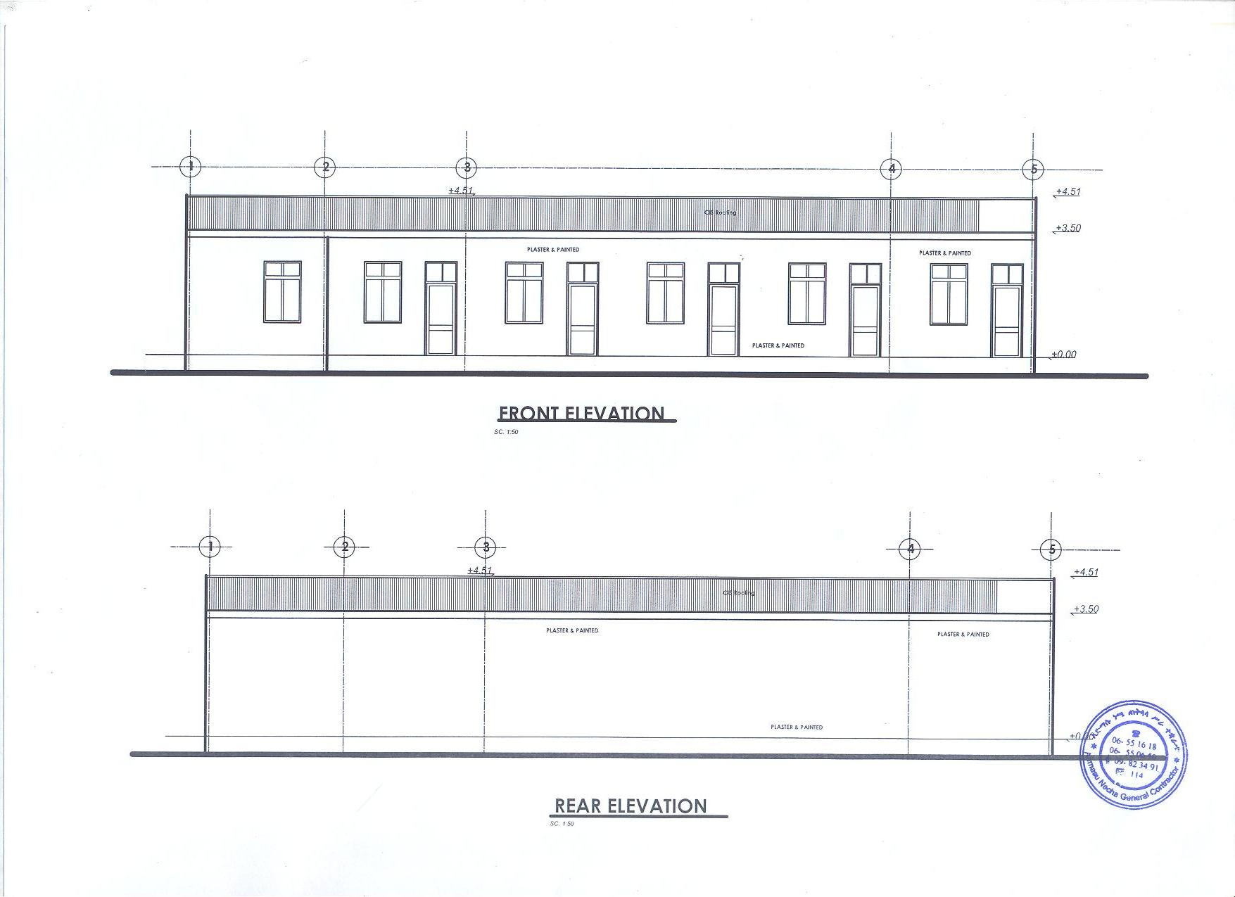
Soddu Abala: il progetto e la realizzazione
Torna indietro